2級建築士製図試験のみに特化した 製図試験分析ページ
試験の特性を理解していただき、合格をサポートするページです
![]()


(注1)各階平面図については、試験問題中に示す設計条件等において指定します。
(注2)答案用紙には、1目盛が4.55ミリメートル(矩計図については10ミリメートル)の方眼が与えられている。

試験問題を十分に読んだうえで、「設計製図の試験」に臨むようにしてください。
なお、建築基準法等の関係法令や要求図書、主要な要求室等の計画等の設計与条件に対して解答内容が不十分な場合には、「設計条件・要求図書に対する重大な不適合」と判断されます。
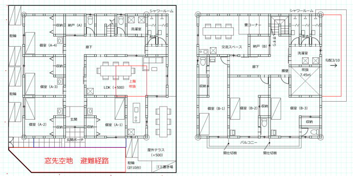
令和6年度試験終了後 令和6年度 【観光客向けのゲストハウス(簡易宿所)】
【総論】
本年度もサプライズ要求がなく、昨年に引き続き出題自体が非常にシンプルなものであった。予見していた通り、エスキスを難なくこなせた受験生も多かったと推測できる。ただし、今回の設問は大きなサプライズがない反面、非常にトリッキーな設問となっていたように思える。簡単にエスキスをこなせたと思っていても、おそらくそのトリックに引っかかり減点となるであろうポイントがあることがわかる。そのことから技能点で争うこととなると同時に、要求に対して履行されているかを厳密にみられるであろうと推測できる内容であった。
【試験レベル】
本年度もサプライズがなく、非常に難易度が低い内容であった。
しかし、いたるところにトリックが潜んでいたのがお判りだろうか。当講座で確認できたものを次に列記する。
@6m×6mグリッドでは構成できない。*駐車スペース及び避難経路が要求通り設定できない。
A各自の判断を試された、通用口の計画。*喫茶スペース従業員用をどのようにとらえるか
B駐車スペース(搬入用)の設置位置。*搬入しやすい配置が好ましい
C倉庫(A)の配置。*隣接ではなく近接である
D非常用電源室*1.3m×1mの蓄電池を収納するスペース。*心々1.3m×1mで計画するのではない
【合否予想】
本年度は多くの受験者が例年試験の合格レベル作図をするであろう。道路位置・外構要求から逆算すれば下図(1)に示すような、建物配置及びグリッドでの計画が最適であることが簡単に紐解ける。
(図1)

よって、比較的難易度の低い内容であることから、@表現がしっかりできているか、A要求に対して正確に履行しているか、B書き忘れ等のミスが最小限に抑えられているか。これさえできていれば合格に限りなく近いと考えられる。要するに本年度は「基本がしっかりできているか」色がつよく、設計の良し悪しは二の次という感じがしてならない。
【当講座対応結果】
当講座における学習では、ほぼ全ての要求に対応できる学習を行った。
YouTubeでも6月に配信した通り、窓先空地・避難経路に関しての出題があった。また、予想は3階建てであったが、予想問題中2問を2階建てとして学習し、その解答例をアレンジしても十分対応できる内容であった。なお、2階建ての竪穴区画は無い旨の学習も、事前に行っていたので、当講座受講者は対応できていたであろう。
【解答例】
予想問題C解答例を一部アレンジして対応できた。下図2でそれを示す。
図2

令和6年度 2級建築士設計製図試験考察動画
視聴にはパスワードが必要です
令和6年度課題発表
令和6年度 2級建築士製図試験課題 【観光客向けのゲストハウス(簡易宿所)】
【第一報】6月12日12:00掲載
令和6年度の課題が発表されました。 当講座としての分析、攻略ポイントを説明します。
【 総 論 】
ズバリ!注意事項でも書かれている「建築基準法等の関係法令」に対し評価される点である。
また、非住居でゲストハウスとなると、特殊建築物に対する法令知識も必要となる。
ただ、あまり恐れる必要はない。関係法令にしても、基準をクリアできるもの(宿泊者数1人に必要な床面積など)で計画できるようにエスキスの練習に取り組めば、大抵の法令基準を満たすことが出来る。
その基準を当講座では学習していきたい。
要求図書は以下の内容である。
【 分 析 】
近年の発表傾向である、階数指定がない。またRCでは構造(ラーメン構造なのか壁式構造なのか)が明示されない。
前回のRC課題発表と同様であり、要求図書からみて3階建であろうとは想像できるが、当講座では予想問題6問中 2問程度は2階建てを取り組む予定である。
なお、課題では「観光客向けのゲストハウス」となっているので、なんとなく「インバウンド」を意識してしまう。そうであれば駐車スペースは要求されず、レンタサイクル用の駐輪スペース要求となりそうである。
@関係法令に関して。
建築基準法令・消防法・旅館業法は最低おさえておきたい。なじみのない旅館業法は建築法令集にも収録されている法令なので無視はできない。
A特殊建築物(大抵のものは出題建築物の規模から考え、通常通りの学習で対応できる)
法令集は再度おさらいしておきたいところであるが、その時間が有るなら製図の技能向上のため、描き方の練習に時間を割きたい。この試験の性格上、「廊下又は出入口の幅は○○とせよ」や「直通階段を設けろ」「防火設備には記号で示せ」と具体的な要求がされる。
すなわち、要求されている意味が分かれば対応は十分可能であるから、考えられるだけの項目を抽出して学習することが必要である。
以上のように、近年はつかみどころのない課題の発表方法がとられるが、基本通りに学習しておけば十分対応可能であると考えられる。
知識及び技能練習をしておきたい項目
●バルコニー(平面図・伏図・部分詳細図を描くためには知識が必要である)
●数値指定(階段や通路・開口部など法令に対する計画性)
●3階建の場合の竪穴区画及び延焼ライン
●2階建ての場合の屋外階段
●各室構成(事務室・ユーティリティー空間・客室等の構成)
●エレベーターの設置
●他法令とのリンクした設問(火災報知器設置など消防法・旅館業法等)
【 攻 略 ポ イ ン ト 】
●簡易宿所は特殊建築物。避難に関して問われる可能性が高い。(敷地通路が問われるかも)
●消防法・旅館業法・耐火構造・耐火建築物の学習。
●使用部材・納まり・数値(部分詳細図)。
●エスキスに関して、要求室は名称が変わるだけなので従来の学習通りで大丈夫である。
令和5年度試験終了後 令和5年度 2級建築士製図試験課題 専用住宅(木造)
【総論】
本年度はサプライズ要求がなく、出題自体が非常にシンプルなものであった。そのことから受験者は難なく設計できたであろうことが推測できる。視点を変えれば、どれも似たり寄ったりの計画となると考えられることから、設計の良し悪し・構造の理解・知識を競うのではなく、もっと根本的なことである、要求に対しての履行・正確な表現力、すなわち技能点を中心に競うことになると思われる。
【試験レベル】
本年度もサプライズがなく、非常に難易度が低い内容であった。
なお、受験者が一番気にかかるのは次の事項ではないだろうか。
@土間の要求・矩計図作図能力。
A各自の判断を試された、屋外スロープの計画。
B多目的室の出入口および駐車位置からの荷物搬入経路。
Cワークスペースの広さ決定。
【合否予想】
本年度は多くの受験者が例年試験の合格レベル作図をするであろうから、そのレベルの作図をしても合格は困難であることが予想される。よって非常に高い次元での採点となる半面、合格率も高めに推移することが予想される。53%〜55%での範囲となるのではないだろうか。
【当講座対応結果】
当講座における学習では、ほぼ全ての要求に対応できる学習を行った。
【解答例】
夏!合宿2023の解答例を一部アレンジして対応できた。下図でそれを示す。

令和5年度課題発表時 令和5年度 2級建築士製図試験課題 専用住宅(木造)
【第一報】6月7日11:00掲載
令和5年度の課題が発表されました。 以下第一報として当講座としての分析、攻略ポイントを説明します。
【 総 論 】
昨年に引き続き「保育所(木造)」と同様、つかみどころが少ない課題である。木造専用住宅であれば通常の学習通り取り組めばいいと簡単に考えてしまうが、必ず「なにかある」のが試験である。
要求図書はR4年度と同様の内容である。
昨年同様、注目すべき点は階数指定がない・床伏図兼小屋伏図としか書かれていない点(2階床伏図との表記でない)である。
また、単純に専用住宅の計画で終わるはずはないであろう。それらを考えると、通常の学習に加え必要になる項目としては
@3階建ておよび耐火構造
A他法令とのリンクした設問対策
を万一に備え学習しておきたい。
【 分 析 】
本年度の告知の特徴は以下のとおりである。
@専用住宅(木造)であり、従来の「○○室のある専用住宅(木造2階建て)」のように具体的な課題ではない。
A階数指定がされていない。何階建か不明である。
@に関しては基本的には従来の学習で対応できるが、室計画が想像できない。すなわち、何室が要求されるか不明である。よって様々な室計画(洋室・和室・土間・吹抜けのある室など)ができるようにしなければならない。
A階数が明示されていない。すなわち2級建築士の設計可能範囲を考えれば2階か3階のどちらかである。昨年同様、1階平家も理屈の上では考えられるが、「各階平面図は試験問題中に示す」とある以上、出題の可能性はほぼゼロである。
以上のように不明な点が多いことから、令和2年からの傾向である「どのようにも出題でき予測困難なマクロ的な出題予告」である。また、過去にサプライズとして出題されたものは、当たり前のように要求される傾向にあるので過去問分析も非常に重要となる。
近年のサプライズとして出題された要求のうち、何を要求されてもおかしくないことと、念のためにサプライズ要求対応の(しっかり描き上げるための)知識学習および技能練習(表現力)が重要である。
知識及び技能練習をしておきたい項目
●バルコニー(平面図・伏図・矩計図を描くためには知識が必要である)
●数値指定階段(出題文はパターン化されているので、事前に慣れておく)
●屋内駐車場
●吹抜け
●木造3階建て(可能性は低いが、念のため知識学習)
●3階建ての場合の構造知識(同上)
●ホームエレベーターの設置
●他法令とのリンクした設問(省エネ構造等)
【 攻 略 ポ イ ン ト 】
●専用住宅に求められる項目は、近年特に省エネ性能が求められている。省エネ性能についてくらいは、ザックリでも学習しておく。
●念のため省エネ性能、3階建の場合の耐火・準耐火構造の学習。
●様々な構造(乾式・湿式外壁、土間などの床構造、バルコニー断面の構造など)に対応できるように。
●エスキスに関して、要求室は名称が変わるだけなので従来の学習通りで大丈夫である。
令和4年度試験終了後 令和4年度 2級建築士設計製図試験考察【保育所】
【総論】
念のために備えた「防火・耐火・避難」は出題されなかった。YouTube配信動画でも解説した通り、1級建築士試験を上回るレベルのものとなるため出題されないであろうとの考え通りになった。よって、本年度はサプライズもなく非常に難易度の低い内容であった。ただし、トリッキーな要求がされたこと、他法令がリンクされた設問であり、過去にはない出題パターンに気が付いた人は少ないであろう。総体的に受験者の作図の出来がいい反面、これらが優劣を決めるポイントとなるであろう。
【試験レベル】
本年度はサプライズがなく、学習通り作図すれば合格するないようであった。昨年度の合格率が低かったことへのサービスと言わんばかりの内容であった。
なお、受験者が一番気にかかるのは次の事項ではないだろうか。解釈とともに書き示しておく。
@階段数値指定=子どもは利用しないので数値を満たせば回り階段でも問題ない。
A安全・防犯=敷地を塀・フェンスで覆う。掃出し窓などの転落防止策等の設置。
B職員便所・更衣室=男女それぞれに分けて室計画すればよい。
C積極的な自然換気=抽象的な設問であるので、2面窓を設ければ対応できる。
D調乳・沐浴室配置=主な利用者は乳児となるので、乳児室にから出入りでも問題ない。
E保育系室の面積=内法で計測。ただしこれは「小規模保育事業に基づく」と書かれていた以上、心々でも解釈によっては正解となる。センターではどのようにとらえているかが興味深い。
【合否予想】
近年、特に2019年度試験から顕著となった設問パターンの変化に対応が困難な独学者の合格率が非常に低いことが予想される。昨今の傾向から独学での合格を目指す学習には限界があることが、試験内容よりうかがえる。
本年度は非常に難易度が低い設問と感じるが、そこが厄介な部分である。受験者の図面完成度が総体的に高いレベルの場合は以下の基本部分で競うことになるとともに、本年度のトリックというかステルス設問への対応度を見られる可能性が非常に大きい。
1.線の使い方・表現能力。すなわち技能点
2.各図面間の整合性(特に伏図・矩計図は要注意である)
3.要求履行能力(保育系室の面積処理・課題や要求に見合った計画か・換気や男女別要求室の計画性など)
上記をしっかり見られると思われるのが、先に述べたように本年度試験レベルから完成度の高い図面が多いと推測しており、昨年度の低合格率から考え、50%後半の高い合格率であろうと予想される。
【当講座対応結果】
定員に対する室床面積・設問言い回し・要求室・小規模保育所・人員及び定員はほぼ学習内容通りであり、予想問題6課題で網羅できた。
さらに予想問題解答例を若干のアレンジするだけで、そのまま試験解答に転用できた。下図は予想問題@解答例をアレンジして試験解答とした例である。
予想問題@オリジナル解答例(計画を示すもので数値・記号・記述は一部省略)

予想問題@アレンジ 試験対応解答例(計画を示すもので数値・記号・記述は一部省略)

![]()
令和4年度課題発表時 令和4年度 2級建築士製図試験課題 保育所(木造)
【第一報】6月8日13:00掲載
令和4年度の課題が発表されました。 以下第一報として当講座としての分析、攻略ポイントを説明します。
【 総 論 】
例年通りの出題形式ではない「保育所(木造)」とつかみどころが少ない発表である。木造の場合、住居併用住宅を出題されていたが、今回は非住居となる。(RC課題の場合はたまにある)
要求図書はR2年度と同様の内容である。
注目すべき点は階数指定がない・床伏図としか書かれていない点である。
また、例年は法令に従った建築計画(目的は建築確認申請がパスできるもの)を求められていたが、本年度はそれプラス 規模等により「保育所許認可に必要な設置基準」 も考慮することに注意が必要である。
ただし、おそらく小規模保育施設を前提に出題される公算が大きく、その場合併用住宅に準じた出題であり階段数値指定や敷地内通路幅・バリアフリーに関する具体的な指定がされるというのが実際のところではないかと考えられる。
【 分 析 】
本年度の告知の特徴は以下のとおりである。
@建築法令プラス場合によっては許認可を考慮した(バリアフリー関連法等)設計が必要。
A階数指定がされていない。何階建か不明である。
@に関しては基本的には従来の学習で対応できるが、住居併用住宅でないため、法令で定められる数値や解釈を修正しなければならない(採光計画等々)。
また、木造では従来考えなくてもよかったこと(防火・避難・床構造など)も再確認が必要である。
A階数が明示されていない。すなわち2級建築士の設計可能範囲を考えれば2階か3階のどちらかである。1階平家も理屈の上では考えられるが、「各階平面図は試験問題中に示す」とある以上、出題の可能性はほぼゼロである。
以上のように不明な点が多いことから、令和2年からの傾向である「どのようにも出題でき予測困難なマクロ的な出題予告」である。また、過去にサプライズとして出題されたものは、当たり前のように要求される傾向にあるので過去問分析も非常に重要となる。
本年度も荒れた試験となる予感がするとともに、戦意をくじくサプライズも要求されるだろう。
要求室は以下のものが要求される可能性がある。
●授乳室
●ほふく室(ハイハイする乳幼児用)
●保育室
●遊戯室(プレイルーム)
●保育士室
●調理室
●医務室
●保育士用便所
●幼児用便所
●事務室
●所長室
【 攻 略 ポ イ ン ト 】
●建築関連法令プラス保育所許認可のためのポイントを押さえる必要がある。
●階数指定がないが、「各面平面図」「床伏図兼小屋伏図」と指定されている以上、2階建てであると推測できる。よって過剰に反応せず、今までの学習にプラス保育所の知識を追加する程度に考える。
●様々な構造(乾式・湿式外壁、土間などの床構造、避難経路、防火上の構造など)対応できるように。
●要求室はある程度予測できる。よってエスキスは従来の学習通りで大丈夫である。
![]()
令和3年度試験終了後 歯科診療所併用住宅(鉄筋コンクリート造)
令和3年度 2級建築士製図試験課題 考察
そもそもが単純な問題でした。何を求められているか、的を外してしまうと抜け出せないような問題でしたが、本質は何かを的確にとらえることが重要です。要は複雑に考えないこと。シンプルにとらえることができる人は、さほど難しくなかったと、ご報告いただいています。
それにしても、意地悪な問題でしたね。この傾向はさらに続くと思われます。
第一報(2021/9/12 18:20)
受講生皆様にメールしました通り、本年度のサプライズは敷地内傾斜でしたが、敷地全てを平坦にしてはならないというものでした。よって特別に数学の直線式(関数)を利用して、地盤交点を求めるというものではないので、比較的簡単な要求ではありましたが、そこにとらわれた方は時間の浪費に苦しんだと予想されます。
現在解説動画を編集中により、YouTube配信で公開しますが、しばらくお待ちください。
また、「もうだめだと」と思われている方もいらっしゃると思いますが、図面完成させていれば十分希望が持てるのも、本年度課題の特徴です。合わせて解説します。
令和3年度課題発表時 2級建築士製図試験課題 出題予測
令和3年度の課題が発表されました。 以下当講座としての分析、攻略ポイントを説明します。
【 総 論 】
本年度課題の発表内容が例年と異なるものであった。先に述べておきたいが、これは平成元年度製図試験【合格率46.30%(例年の53%〜55%と比較し著しく低い)】と同様の荒れた試験となるであろう。理由は簡単である。独学では、絞り込むことが困難であるマクロ的な出題予告に対応できないからである。また、学習・練習不足の受講生も容赦なく振り落とされる可能性もある。
令和元年から告知されている通り{設計与条件に対して解答内容が不十分な場合には、「設計条件・要求図書に対する重大な不適合」と判断されます}とある。
合格するためには、与えられる条件をクリアしていることが前提とした採点である。すなわち技能・知識がいくら優れていても、採点の土俵に乗らない解答をするなヨ!と言われているわけである。
【 分 析 】
本年度の告知の特徴(例年と異なるもの)は以下のとおりである。
@専門性(歯科医向け)のある分野での建築計画である。
A構造(ラーメン構造の指定がない)。
B階数が不明である(明示されていない)。
@についてはエスキスパワーアップノート課題Jが類似問題となる。
そこでも解説しているが、専門性のある建物を計画することが果たして可能なのであるか。私たちは衛生面・X線・医薬品等の医療知識は持ち合わせていない。それで室配置や動線を計画できるのかである。例えばレントゲン室はX線被ばくを考慮し、待合室に隣接してはならないのか等々。
その対処法は課題Jで解説しているが、課題対策学習でもしっかり押さえていきたい。また、多くの室要求をされる可能性が高い。
Aの構造である。RCの場合、大別して壁式構造とラーメン構造である。どちらでもいいのか、又は構造が指定されるのか謎である。
B階数が明示されていない。すなわち2級建築士の設計可能範囲を考えれば2階か3階のどちらかである。1階平家も理屈の上では考えられるが、「各階平面図は試験問題中に示す」とある以上、出題の可能性はほぼゼロである。
以上のように不明な点が多いことから、予想される組み合わせは非常に多い。まさにマクロ的な出題予告である。全て網羅した効率よい学習を行う必要性が今年は顕著である。よって独学受験や学習不足の受験者は容赦なくふるいにかけられる事になれば、令和元年度のような合格率となろう。また、例年枠として合格率(合格者数)をとらえた場合、かなりレベルの低い採点基準となる可能性も考えられる。
いずれにせよ、例年とは少し違う荒れた試験となる予感がするとともに、ポイントをしっかり押さえた者は、比較的楽に合格できる、「荒れた試験かもしれないが同時にチャンス」な試験でもある。
【 攻 略 ポ イ ン ト 】
●基本的な描き方、サプライズ要求に対する対応力、設計条件から逸脱しない計画、各図面間の整合性。
●併用住宅の設計ポイントをしっかり押さえる。
●課題発表の文章中に重要なポイントが書かれている。それによる効率的で継続的な学習ができるかどうか。
●様々な構造に対する理解力をつける。また、それに対応した各図面を作成できる知識を習得。
![]()
令和2年度試験終了後 2級建築士製図試験考察
【総論】
要求に対するものは、学習を通して多くの方がクリアできたであろうと推測する。
本年度はその準備はパーフェクトであった。しかし、これは他の講座でも同様のことがいえる。すなわち合格レベルの図面を描いた受験者が多いことを意味し、ハイレベルな接戦であろうことが想像できる。
また、例年に比べ2階室計画の多さが本年度の特色であるが、夫婦寝室の静寂性を考慮する要求はなかったことから、予想問題1〜6を総2階建てとすることで、アレンジにより十分対応できた。
YouTube【製必PJレッスンチャンネル】で夏!合宿予想問題解答例をアレンジした製図試験解説動画を公開している。
【試験レベル】
本年度も昨年に引き続き「変化球」はなかった。
また、内容的には昨年の要求を踏襲していることがうかがえる。よって、受験者の多くが準備万端試験に挑んだであろうことから、試験レベルとしては中程度の難易度であった
@階段数値指定
Aバルコニー表現
B乾式外壁構造および断面表現
これは昨年の要求事項であるが、本年度も同様である。
【合否予想】
昨年に続き独学者の合格率が非常に低いことが予想される。昨今の傾向から独学での合格を目指す学習には限界があることが、試験内容よりうかがえる。
また、毎年独学者が占めていた合格枠に空白が多くなったところへ、繰り上げ的に合格するという考えは昨年の例を見ても通用しないことがわかる。
過去の合格率が50%台前半〜中盤で推移していたものが、昨年は衝撃的な40%台であった。
これは合格者数を数合わせ的に設定するのではなく、合格レベルに達しないものは躊躇なく落としていくことであり、センターから受験者への警告でもあった。本年度もその傾向の採点をされるであろう。
1.課題文から出題趣旨を逸脱した回答
2.要求に対する不履行
3.書き忘れ、書き間違い、各図面間不整合
上記をしっかり見られると思われるので、昨年に引き続き40%中盤の合格率を考えてしまうが、先に述べたように本年度試験レベルから完成度の高い図面が多いと推測しており、厳しいながらも40%後半〜50%くらいの合格率であろうと予想される。

令和2年度 2級建築士設計製図試験解答例
*8/20実施 夏!合宿解答例をアレンジしています。
令和2年度課題発表時 2級建築士製図試験課題 出題予測
令和2年度の課題が発表されました。 以下当講座としての分析、攻略ポイントを説明します。
シェアハウスを併設した高齢者夫婦の住まい(木造2階建て)
【 総 論 】
平成元年度合格率については、学科試験42%(例年より高い)、製図試験46.30%(例年より著しく低い)であった。これは、学科試験合格者が多いために製図試験を厳しくすることで「最終合格者数の例年比均衡を保つ」という、単純な見方ができない。
令和元年から告知されている通り{設計与条件に対して解答内容が不十分な場合には、「設計条件・要求図書に対する重大な不適合」と判断されます}とある。
すなわち、採点内容について新たなステージに入ったとみるべきであり、過去試験に比べ要求に対する履行能力をさらに強く問われるということである。
【 分 析 】
昨年に引き続き併設住宅である。
過去問を精査すると、併設住宅は併用住宅とは違い、併せて設ける住宅のため「出入口(玄関)が別」となるようである。
昨年のように用途が別ではなく、同一系統にあるものから一般的な住宅を分離する計画が求められるであろう。そして、課題から想像すれば高齢者とシェアハウス入居者の交流が考えられるので、そのスペースを挟んでの分離が要求される可能性がある。それが交流スペース(室)なのか庭またはテラスなのかはわからないが、互いのプライバシーとセキュリティーを考慮しつつ、高齢者とシェアハウス入居者が交流できる住宅を計画することになろう。
【 攻 略 ポ イ ン ト 】
●基本的な描き方、サプライズ要求に対する対応力、設計条件から逸脱しない計画、各図面間の整合性。
●「出入口を明確に分離する」というのが併設住宅の出題パターンである。分離しつつ交流できる住宅とはどういうものかをイメージして学習する必要がある。
●建基法に抵触しなくても、寄宿舎に対する要求や制限等が問われる可能性があるため、事前の確認。
●本年は作図能力は有って当たり前。要求に対して正確に履行できるか、建基法の知識を持ち合わせているかなど、「出題に対して正確に読み取る力」・「知識面」を例年以上に問われると推測する。
そして、今年は2階床伏図に苦労することになると予想している。その理由は各自考えてもらいたい。
![]()
令和元年度試験終了後 2級建築士製図試験考察
【総論】
建築計画全般的に見て各講座が予想しうる範囲での出題であったと思われる。要するに誠にオーソドックスであり、基本的な出題であった。
本年度はサプライズ出題がなく、各受験生は自分のペースで試験に取り組めたものと推測できる。すなわち、本講座が6月にYouTubeにアップした本年度試験予想の通り、基本部分での接戦となることを意味している。線の使い分け・離れ・書き忘れがあると今年は手痛い結果になることが予想される。
【試験レベル】
本年度の「変化球」はなかった。
これは各受験生がかなり高いレベルの製図を投入することを意味する。その反面、独学組には大変不利な状況ともいえる。
例えば当講座を含む各講座は次の項目を学習済みと思われるが、市販教材では網羅しきっていない部分であるからである。
@階段数値指定
Aバルコニー表現
B乾式外壁構造および立面表現
更に本年度出題傾向予想である「どのように判断するかが求められる項目」の増加。に対応できなかったであろうことである。
詳しくは動画にて説明したい。
【合否予想】
毎年独学組が占める割合が減少するかもしれない。
よって毎年合格者の占める割合が、独学組減少により空白が生じる。
また、当初予想の通り、練習している者と不足している者の差が如実に表れるはずである。
各図面の不整合・技能点が合否のカギとなる。小さなミスの累積減点があれば不利な状況になる。
学習通り冷静に対応していれば逸脱したもの以外ほぼ合格レベルの出来となるはずであるから、本年度も昨年に引き続き54%前後の合格率となることが予想される。
第2報
受講生からエスキスチェック依頼および質問があったことに回答します。
Q・家事室は1階に持っていくべきだったでしょうか
A・要求ではどこまでの家事を想定しているか不明だが、確かなのは洗濯機置き場とのワードである。洗濯物が出るのは脱衣室・居室である。ここでポイントとなるのは洗面脱衣室とセットで設けろ、と解釈するのが適切である。よって要求では1階2階どちらでもよいとされているが、居室のある2階に浴室・洗面・家事室をセットで設けるのが好ましいという結論になる。決して洗面浴室は1階、家事室は2階としてはならない。
Q・北側敷地境界から2マスしか開けず計画し、軒の出を455mmとした。減点でしょうか。
A・結論からいうと減点とはならないと判断する。しかし、当講座ではその場合軒の出を切り詰めると学習している。
民法では軒の先端から計測しない。とS58東京高裁判例にある。しかし、判例にあるということは近隣トラブルがあった証である。そのようなトラブルの原因となる可能性のものは避けるのが建築士としての鉄則である。試験のような広い敷地であればなおのことである。
安藤忠雄先生の「表参道ヒルズ建設」のお話を伺ったときから、暮らす人の気持ちを大切にする建築士でありたいと思っている。また、あっていただきたいとも思っている。
Q・部分詳細図を湿式で書きました。減点でしょうか。
A・減点は間違いないが、致命的ではないのではと判断する。根拠として、「予告なしの設問であった」からである。ただし、H29は予告があったので、すでに乾式・湿式両工法を作図できることがスタンダードとなっていると考えられていると、少々手痛い減点になる可能性はある。
Q・駐車場を奥行き5mで仕上げました。いけないでしょうか。
A・今回は幅3.5mとだけ指定された。さらに車いす専用駐車場や法令に基づいた設問ではないことから、要求を満たすことだけ考えれば問題ないと判断する。しかし、相対評価である以上、5mと6mの違いは必ず評価されると個人的には思っている。
Q・伏図にバルコニー部分を書いてません。大丈夫でしょうか。
A・要求では詳細に指定されていない。すなわち後付けのバルコニーも存在するので伏図の梁記入は不要である。インナーバルコニーの場合は梁配置だけ正確に計画していれば通常の伏図で問題ない。
第2報 多くの受講生から質問をいただいたことに回答します。
Q・夫婦が働きながら家事をしやすい配置・動線とはどうとらえればよかったのでしょうか
A・計画の留意事項と、更に「計画の要点」でも問われています。ここで何を試されているかというと、「設計者の意思がしっかりあるか」ということです。
今回の要求に対し、一般的な考えとして家事室を1階の事務所と居室系の接続部分に配置すると動線としては働きながら使用しやすいように考えられます。
しかし、一方ではこのような考え方もあります。働きながらというのは、就業中に家事をするということなのか。それとも事務所併設住宅として機能的なことを言っているのか。
また、1階に家事室を配置して、何をするのか。2階の居室部分と脱衣室があるそばに設置するほうが機能的である。など、とらえ方によって設計も変わってきます。
よって、試験要求では1階または2階どちらにも「浴室・脱衣室・家事室」を設置していいですよ。ってなっているわけです。
そして今回一番試されているのが、「なぜ私がこのような設計にしたか」という設計者の確たる設計理念(ちょっと大袈裟か)を「計画の要点」で述べてもらいたい、ということになります。
なので、受験生の設計を計画の要点で述べること、すなわち今回は建築士の必須能力であるプレゼン能力を例年以上に試されているものとなっています。
もちろん「建築計画が逸脱したものでない」、「設計と計画の要点が整合性あるもの」であるということが前提になりますが。
【令和元年度試験解説動画は削除しました】
令和元年度課題発表時 2級建築士製図試験課題 出題予測
令和元年度の課題が発表されました。 以下当講座としての分析、攻略ポイントを説明します。
*この配信は令和元年6月12日 午前11時30分に配信しました。
夫婦で営む建築設計事務所を併設した住宅(木造2階建て)
【 総 論 】
近年の出題傾向では外壁仕様の要求であったり、RC課題では初めて要求された部分詳細図であったりと複雑化された流れがあった。
しかし、要求図面を見る限り、受験生を悩ます変化球的要求はあるものの、従来の要求水準になるのではと考えられる。すなわち合格する人が増える=合格率が上がる可能性がある。
これは喜べることではなく、そこそこの解答では合格が難しいということでもある。
基本的な図面が描けて当たり前、それ以上のプラスαでの戦いとなることが想定される。
【 分 析 】
併設住宅は過去にもよく出題されているパターンである。
過去類似問題を比較して考察すると、おそらく1階に事務所・2階に住居または1階事務所と住居・2階住居となるであろうが、その逆もあるかもしれないということは頭に入れておくべきである。
また、事務所の要求室に関しては、接客スペース・作業スペース・倉庫系・、住居エリアは従来とさほど変わらないパターンであろうと推測する。
ひとつ気になる部分として、事務所と居住エリアは明確に分けることとなるであろうから、その動線計画である。
RC課題のような玄関構造や外階段の設置は念のため学習しておいたほうが良いかもしれない。
また、家族構成が夫婦だけなのか、子ども又は親が存在するかによっても外構計画・室計画が変わってくるのであらゆるパターンを学習しておく必要がある。
【 攻 略 ポ イ ン ト 】
●製図作成の基本を完璧な状態にしておきたい。
●「出入口を明確に分離する」というのが併設住宅の出題パターンである。よって、上下階通路(外階段含む)の計画ができるように。
●建築設計事務所が開業できる地域とは。その制限は。これらを考えイレギュラーな要求にもこたえられる準備。
●今回は従来の要求水準であれば、図面の完成度を問われる。よって練習不足の人は合格が困難。人の倍、図面を描きこみ、体で覚える決意で学習に取り組む。
![]()
平成30年度試験終了後 2級建築士製図試験考察
平成30年9月10日 第1報。
【総論】
建築計画全般的に見て各講座が予想しうる範囲での出題であったと思われる。
昨年の階段数値指定に続き、本年度の変化球は直近出題傾向では珍しく、防火について深く問われる内容であった。
「延焼のおそれがある部分」、「防火戸の設置」および「竪穴区画」を問われた内容は過去問出現数からみてイレギュラーであることから、多くの受験生を悩ますものとなったと考えられる。すなわち採点ポイントで明らかになるであろうが、昨年の階段設置要求と同様に致命的な減点ポイントになるとは考えにくい。
いずれにしても、近年顕著にみられる「過去問が通用しな」設問形式にになり、年々要求の複雑さが顕著に表れた内容であった。
【受験者の本質をとらえる力】
本年度の「変化球」は防火であった。しかし、そもそも一般的な鉄筋コンクリート建造物は基本となるべき構造が耐火となっており、ポイントとすればズバリ「延焼のおそれがある部分を示しなさい」「竪穴区画を設けなさい」「延焼のおそれがある部分の外壁開口部の防火をしなさい」という学科試験で出題されるような内容にすぎなかった。
もちろん指定の防火設備は消火栓等ではなく、防火戸・金網入りガラスや耐火ガラスを指すのであり、ただ単に○防記載すれば良いものである。
延焼の恐れのある部分を1F部分で3m以下・2F以上を5m以下とし、道路中心部からの距離は無視できるので実質 北および東面の開口部に○防、竪穴区画のドアに○防が必要になる。
また、ピロティーは駐車場としては利用できないということから、建物外に計画せざるを得ないため敷地形状より、敷地北側を道路から直角駐車で計画すると2.5mないし3m北側境界線から離した位置からの建築計画が最良となる。
エレベーターについては面積算入との要求があり、算入・不算入の判断は学習通りであった。
計画の要点で環境負荷低減を問われたことも、受験者を悩ませた一つと思われる。
【合否予想】
今年は変化球が多かった課題となった。
今回の最大の変化球は防火であり、不意を突かれた感がある。過去問ではせいぜい区画の防火扉設置を指定される程度で、各講座とも防火については深く掘り下げて学習はしていない可能性がある。
このことから防火に関する適切な解答をできた総数は多くないことを考えると、これが重大な採点ポイントとなることは考えにくい。
すなわち、建築計画・表現にすぐれている図面であれば、昨年の階段指定同様に十分耐えられる減点にとどまると考えられる。
第2報
以下問い合わせが多いQ&Aを掲載します。
Q・防火扉を引き戸で計画してしまった。
A・引き戸式防火扉も存在します。よって「○防」表示をすれば問題ないと思われます。
Q・駐車場出入口を禁止エリアに作ってしまった。一発アウトでしょうか?
A・採点ポイントでどのように評価されるかですが、作ってはいけない根拠(法や条例)に違反したことになりますから、重い減点の部類になると思います。
Q・延焼ラインを描き忘れてしまった。一発アウトでしょうか?
A・もちろん重要ですが、注釈として設問されている部分です。採点ポイントとして、重大な欠落に該当するとは考えにくい部分ですから、他でよほどのミスがない限り大丈夫と考えています。また、的確に答えられた受験生は多くないとも考えられます。
Q・廊下幅を4マスで計画しなかった。減点でしょうか。
A・廊下と室出入口の関係もあると思いますが、具体的な数値指定はありませんでした。よって3マスで計画していれば180度回転は可能ですから、さほど問題にならないと思います。しかし2マスで計画すると通行のみとなりますので減点される可能性は十分あります。
Q・竪穴区画が計画できなかった。どうすればよかったのでしょう。
A・学習の中で共用部分又はコアと呼称し、階段・EVの上下階経路をまとめるように学習しました。そのコアの階段やエレベータの居住区への経路に防火戸を設置することで、独立した竪穴区画ができます。
Q・外観および外構計画に配慮するとは
A・この言い回しもみなさんを悩ましたと思います。しかしよく考えてください。デザイン的な感性には個人差があり、一概に言えないもの。ここで言うのは「人・自転車・車の動線計画を的確に(交差等)」、外構・建物等の計画ににその努力が見られるかどうか。と思われます。
Q・収納2u以上とありました。これは内法ですか?
A・過去問からの流れで、心々と解釈すれば大丈夫です。
第3報
解答例としてのエスキスをアップしました。
*完全版ではありません。参考としてご覧ください。完全版は有償にて提供しています。
H302級建築士製図試験解答例
誰でも自由に見れるようにしてある関係で、ある部分を正確に表記していません。
当講座受講生の方は完全版をご覧になりたい場合、メールで申し出ください。
*インフォメーションのとおり9/12でエスキスチェック・完成版解答例の提供は終了しました。
****************************************
平成30年度課題発表時 2級建築士製図試験課題
平成30年度の課題が発表されました。 以下当講座としての分析、攻略ポイントを説明します。
*この配信は平成30年6月10日 午後6:00に配信しました。

【 総 論 】
本年度の課題は「地域住民が交流できるカフェを併設する二世帯住宅(鉄筋コンクリート造ラーメン構造3階建て)」である。
まず初めに押さえたいのが「カフェは誰が運営するのか」である。
課題ではもちろん明確に判断することはできないが、過去出題例からおそらく居住者が運営するのではと思われる。そうなれば平成21年度課題に限りなく近い想定になるのではないか。ということである。
【 分 析 】
カフェと居住区がどのような分かれ方で指定されるか注目である。
一般的には1階にカフェ、2階3階に居住区という配置計画が考えられるが、近年の出題傾向からして必ずしも定石通りに行くとは限らない。
また、本年度は部分詳細図の要求がある。
これは何を意味しているかというと、1/100スケールの断面図によるアバウトな構造表示ではなく、細部まで理解しているかが問われることである。さらに、各図面間の整合性をチェックすべき軸となる図面が1枚増えたことといえる。特に今回の部分詳細図と断面図は整合性(図面リンク)が顕著に表れるので、ミスをして減点とならないよう注意したい。
【 攻 略 ポ イ ン ト 】
上階への経路を様々なパターンで検討しなければならない。
メーターモジュールでの計画に対し、和室等の455mmサイズでの表現手法を押さえておく。
多様なバルコニーまたは屋上の計画ができるようにしたい。
部分詳細図対策として構造理解およびRC施工知識を習得しなければならない。
建築計画の根拠となる「法」「令」「則」の理解。
![]()
平成29年度試験終了後 2級建築士製図試験考察
平成29年9月11日 19:20に配信しました。
【総論】
室計画・ボリューム・外構計画どれをとっても教科書通りの出題となりました。如何に基本理解度の重要性を示した試験であったかと思います。
当講座では、「スロープ計画」「ポーチ高・1階床高」「任意仕切り・独立性確保の室計画」「廊下幅」「引戸計画」「乾式外壁」ほぼすべて想定通りの出題となりましたので、この2カ月で学習したものをそのまま活かすことができたと思います。しかし、他講座でも同等の想定をされていたと考えれば、今年は競争が激しい、すなわち昨年以上のハイレベルの戦いとなるでしょう。そのことから合格率は53〜55%と高くなると思われます。
【受験者の本質をとらえる力】
本年度は特段の「変化球」がなかったことになりますが、あえて言うなら階段段数指定でしょうか。これは基本を押さえていれば難なくクリアーできた部類ですし、当講座でも”虎の穴”で外階段に基づき段数処理・長さの設定を学習しました。屋外から屋内への応用で十分対応できるものでした。
また、相手の立場になって設計することを心がければ必然的に課題が要求する建築計画(ユニバーサルデザイン)となったのではないでしょうか。今回の試験の狙いはその建築士としての素養を試された、基本重視な試験であったと考えます。
【合否予想】
合否を左右される項目は、もちろん課題に対する履行率。中でも要求室・各図面の整合性・構造理解・表現力は学習の中でも重点的に学習してきました。これらがランクTに判定されるものでなければなりません。
細かい部分を見ていくと、高齢者が同居するテーマが十分予想されたのでポーチ高・玄関土間高と1階床高は高すぎても低すぎてもダメなことは常識です。屋外物置・菜園はスペースさえあればどうにでもなる部分なのでまずこれで失敗することはないでしょう。階段は踏み面と蹴上を計算すれば小学生でもとける問題となります。
このように見ていくと、格別に難しい要求でもなかったことを考えれば、これらの細かい部分でミスをしても大した減点とならないと考えています。
大した減点にならないのであれば、「要求室・各図面の整合性・構造理解・表現力」を競うこととなりますから、各受験者が拮抗することが予想されます。先にも述べた通り高い合格率53〜55%での発表となるのではないでしょうか。
みんなが気になる採点基準
本年度の製図試験内容は先に述べた通り、ごく一般的な基本を問われた内容でした。
冷静になれば十分対処できた課題・指定であったものの、限られた時間での作図・試験独特な緊張の中での思考を考えれば、次の項目がみなさんの気になるポイントとなるのではないでしょうか。
1・【スロープの数値指定】
上下端の平場(踊り場含む)寸法の指定・幅・勾配・長さの明記。当講座では徹底的にスロープ勾配に対する長さの表現を添削を通して学習してきました。よって作図自体は問題なくとも、数値明記をどのように描けばよいかで悩んだ人もいると思われます。図面上勾配に対する長さが適切に描かれている場合に、数値を描き忘れた又は平場を十分設けることができなかった場合、下記採点基準予想の通りダメージの大きい減点とはならないものと推測しています。
2・【階段の段数処理】
蹴上・踏み面の指定がされました。今後このような形式での課題が増えてくる可能性が考えられます。さて、段数処理は指定されていたものの、一般的な1820×1820の中での階段計画では要件を満たさないことは誰にでもわかることと思います。しかし、廊下幅を気にするあまり多めにスペースをとることを躊躇された方がいるかもしれません。
段数処理をクリアすれば踏み面指定を、踏み面指定をクリアすれば段数処理を行えない結果となりますが、減点はどれくらいのものになるのでしょうか。
この部分に対しても、相応の減点はあるものの下記採点基準予想の通り一発不合格レベルのものではないと推測しています。
3・【多目的室隣接納戸】
将来納戸を便所に改造する旨が指定されています。これはお客様の要望であるともとれる内容ですから、用件を満たしていないと設計した建築士に責めが生じる部類になります。すなわち、相応な減点があってしかるべき部類となりますが、これも階段の段数処理同様「一発不合格」レベルには至らないのではと考えています。下記をご覧ください。
平成29年度課題発表時 2級建築士製図試験課題
平成29年度の課題が発表されました。 以下当講座としての分析、攻略ポイントを説明します。
*この配信は平成29年6月7日 午前11:58に配信しました。
【 総 論 】
大方の予想通り、例年のように出題形式が複雑になりそうです。すなわち、今までの様な「あるパターン」に従って解答すれば良いとはいかないでしょう。室の多様的な配置計画、動線計画、あらゆるパーツの表現力が試されることとなります。しかし安心してください。その範囲も2級建築士としての知識・技能を求められることには従来と変わりありません。基本をしっかり理解することで十分対応できます。当講座では基本学習に加え、本年度課題で予想される要求知識・技能が習得できるように対応しています。
それでは平成29年度製図課題の分析と攻略ポイントを詳しく説明します。
【 分 析 】
課題である「家族のライフステージの変化に対応できる三世代住宅(木造2階建て)」ということから、近年課題の中でも多くの室が要求されることが予想されます。また、変化をどのようにとらえるかにより予想は変わってきますが、多様性のある室計画が求められる可能性が十分あります。また、三世代となると60〜70代の祖父母、30〜40代の子供、10代の孫という家族構成がとられるとすれば、高齢者が優先される建築計画(ユニバーサルデザイン)とするのが好ましいということになります。
すなわち、室の配置でいうと1階に高齢者の室を持ってくるのが好ましいでしょうし、H26度年度のように「介護が必要な」とはなっていないものの、いずれ介護を視野に入れた設計も必要であるということです。
さらに生活空間はどのように分けられるのか。「雑居型」「平面型(1玄関か2玄関か)」「上下型(外階段)」等にも対応する知識・技能が必要です。
これらの分析によって出題される可能性のある事項については基本学習以外に十分学習・練習をしておかなければなりません。
【 攻 略 ポ イ ン ト 】
基礎学習以外に学んでおきたい項目がいくつか考えられます。
すでに課題にもヒントが出ていますが、外壁については様々な仕様に対する学習をする必要があります。たとえばモルタル系であるのかサイディング・ALC・金属等など、耐力壁が筋交か面材か等も視野に入れて学習が必要です。
三世代ということもあり、上記のとおりユニバーサルデザインでの計画、世代別の生活空間が確保された設計および動線計画などは「計画の要点」として出題される可能性は十分にあります。
基本学習プラス上記に挙げた「ユニバーサルデザインでの室の計画」「三世代としての生活空間の計画」「多様な外壁の構造知識、表現力」「その他あらゆるパーツの表現力」がキーポイントとなり、平成29年度はこれらをお客様(採点者)にプレゼンする建築士としての素養を試される試験のように思えます。
![]()
平成28年度試験終了後 2級建築士製図試験考察
【総論】
本年度課題である「景勝地に建つ土間のある週末住宅」の製図試験が9月11日に実施されました。
内容に関しては、受験者の本質をとらえる力を試された内容であり、これから建築士を目指す受験者の基本知識だけでなく素養・素質を試されているようなよくできた内容であると感じまた。しかし、基礎学習により培われた判断力と、建築士となるための素養、すなわち本質をとらえることのできる一般的な常識があれば、例年に比べ特に難しい内容ではなかったと思います。
【受験者の本質をとらえる力】
外構計画の要求度は少なく、自由にプランニングできる反面、屋内駐車場の設置・吹き抜けの指定で判断に迷われた方もいると思います。ただ、冷静に考えれば今まで学習してきた室を屋内駐車場や吹き抜けに置き換えるだけで特に難しい指定もありませんでした。むしろ設備関係を書き込むことがなく、製図作成時間の短縮が図れるものでした。
また、敷地図に関しては隣地境界線と建築用地境界線の区別がされていましたが、隣地境界線を無視し建設用地境界線を従来学習通りの隣地境界線ととらえプランニングすれば何も問題がない内容でした。受験者の中には、浄化槽設置・隣地境界線と建築用地境界線の表示により混乱された方もいるかもしれません。
さらに、南側には広く所有地が確保されているため、建設用地内の建築計画は南側ぎりぎりにしても問題ないことを見極められるかがエスキス作成時間に影響したと思います。すなわち、横長または縦長でもプランニングは可能であったということです。
屋内駐車場に関しては床高を土間と同一にする必要はなく、自動車が入り易い高低差を考えれば+100〜150程度が妥当であることは感覚的な常識ととらえる部分でしょう。もちろんそれより高くなる場合はスロープ等の段差処理を行っていれば問題ありません。
これらのことから例年に比べ外構計画の要求も少なく、要求・特記事項も比較的少ないことを考えると、本質をとらえることのできた方は、難なく製図を100%完成されたのではないでしょうか。
【合否予想】
総体的には特筆して難しい試験内容ではないため、合格率は上がると思います。が、プランニングに時間をかけすぎ、図面が完成に至らなかった方と、本質をとらえ難なく完成させた方の両極端な試験結果だったのではと感じます。すなわち、未完成は採点基準に乗らない可能性がありますから、完成グループが大となると、その中での採点・評価となりますので、図面のクオリティー等を見られることになりハイレベルな戦いになると思われ、今年はランクUの%が増加するかもしれません。
平成28年度製図試験のデータが発表されました。結果はほぼ上記考察の分析と一致しました。
平成28年度課題発表時 2級建築士製図試験課題
【概略】
基本的に難しい知識・技能は求められません。だから難しくまたは複雑に考えるのは禁物となります。ではどのような人が合格するのか。試験実施側の意図を正確につかんでいる人が合格することになります。この意図とは
@建築士としての素養があるかどうか
A基本的な建築に関する知識があるかどうか
B製図表現力を備えているか
ということになります。
それではH28年度製図試験を例にとり、下記で解説していきます。
【建築士としての素養があるかどうか】
建築士は自己満足のために図面を描くわけではありません。それは皆さんもお分かりになるでしょう。相手の要望により図面をおこす、すなわちお客様のために図面を描くのが基本です。もし、お客様の想い描いているプランと建築士が描いたプランが乖離していた場合、設計事務所として成立しないわけです。また、お客様要望をすべて満たしても、建基法に違反や強度不足で倒壊の恐れがある設計をしても同様となります。
H28年度試験では
@隣地境界線と建築線の2つが設定されました。南側には広い空間が確保されています。狭小地にはできるだけ日当たり確保のため南側を広く取りたいけど、今回はその必要がなかったのです。
A「南側の景観を眺められる計画」と課題にありましたが、居室から・居間から等の指定がなかった。冷静に考えれば西および東に居室を計画しても、南側に広い空間がある・視界が限定されていないことを考えればOKなのです。だって、西側・東川に窓があれば北向きでない以上ある程度南側景観は観れますよね。よって要求はクリアできるのです。(他講座やネットでは全室南向きにと書かれているものもありますが、土間も南向きにしないといけなくなるので、その理屈では無理があります。また、そのおかげで耐震性を犠牲にしている設計も見受けられました。)
せめてこれくらいは読み取ってよという出題者側のメッセージかもしれません。大まかにはこの2点をご紹介しましたが、本講座ではその他建築計画での読み解き方・考え方・テクニックをお教えしています。
【基本的な建築に関する知識があるかどうか】
様々な講座がある中、課題を完全に予想することは不可能です。あらゆる問題を想定して学習することになりますが、毎年必ず意表を突いた出題がされます。でないと試験にはなりませんよね。その場合、基本を理解していれば対応できることがほとんどです。
H28年試験の意表を突いた課題は、「吹き抜け」「ガレージシャッター」くらいでしょうか。当講座では吹き抜けの出題を予想していましたが、各講座を受けられた方はいかがだったでしょうか。
吹き抜けの場合、描き方のレッスンを受けてなくても梁をできれば通さない、四隅には火打ちを打たなければいけない。ということくらい基本学習で対応できるはずです。シャッターについては予定線(2点破線)で描けばよいくらいは対応できたと思います。また、建築計画は耐震性に優れた計画であること、各図面、特に部分詳細図については構造を理解しているかがポイントとなりますので、各テキストをよく理解する必要があります。一番いけないのは、優れた設計をしてやろうとか複雑な計画にすることです。耐震性に問題があるうえ図面作成時間内ですべて完成させることができません。
【製図表現力を備えているか】
はじめに書きましたが、製図はだれのために描くか。それはお客様です。次に確認申請のためや実際に建築する大工さん等ということになります。図面がだれにでもわかりやすい(業界で共通したルールに従って描かれているか)ものでなくてはいけません。
H28年試験に限らず、正しい線の使い方・記号の使い方・各図面間の整合性をクリアした図面になっているかです。講座ではこれらを徹底して学習していきます。
平成28年度2級建築士製図課題「景勝地に建つ土間のある週末住宅」解答例。(閉鎖しました)